Wellness nach Maß
Wellness nach Maß

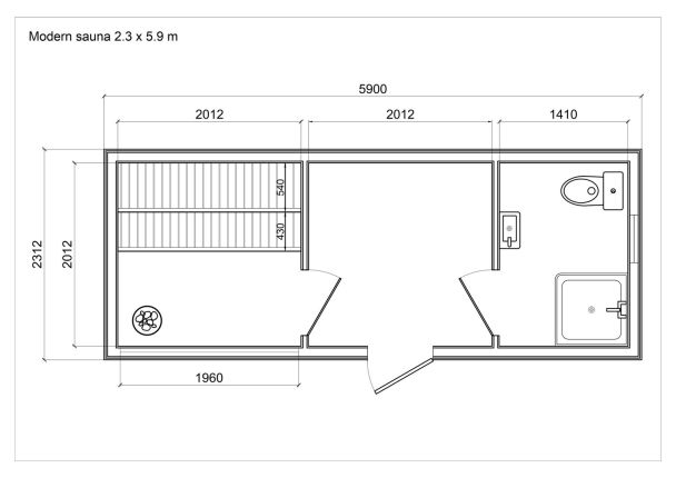
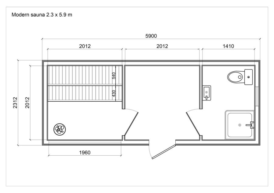
Modern Sauna 2,3 m x 5,9 m mit Bad

Außenverkleidung in Thermoholz (auch in Kiefer erhältlich)
Umkleideraum/Bad innen Kiefer (Boden Kiefernholz)/Saunaraum innen Schwarzerle/Linde (Boden aus Kiefernholz)

Innenausstattung auch in Thermoholz erhältlich
Gerade Sitzbänke in der Sauna
Hitzebeständige Platten für den Ofen
1 doppelt verglastes Fenster 1940 x 1940 mm
1 kleines Fenster 410 x 1150 mm im Badezimmer
1 Glastür mit Holzgriff (im Saunaraum)
1 Holztür (im Badezimmer)
1 Glastür mit Holzrahmen und Schloss (außen)
Isolierte Dachpaneele mit bituminösen Dachbahnen
Blechverkleidung - lose, vorbereitet zur Montage
Personen 2-6
Innenfläche 11,1 m²
Holz Thermoholz
Wand Thermo-Holzverkleidung von außen: 32 x 142 mm Thermo-Holzverkleidung von innen: 19 mm Rahmengestell Kiefer: 45 x 95 mm Steinwolle-Dämmung: 100 mm Isolierte Wandstärke: 164 mm
Boden OSB von außen: 12 mm Kiefer-Dielen von innen: 28 mm Struktureller Kiefer-Rahmen: 45 x 120 mm Steinwolle-Isolierung: 100 mm Isolierte Bodenstärke: 158 mm
Dach OSB von außen: 10 mm Thermo-Holzverkleidung von innen: 19 mm Rahmengestell Kiefer: 45 x 95 mm Steinwolle-Isolierung: 100 mm Isolierte Wandstärke: 124 mm 
Mit schwarzen Bitumen-Dachbahnen bedeckt für Ersteindeckung finale Eindeckung bauseits

 

Badausstattung (gegen Aufpreis erhältlich):

Handtuchwärmer, WC, Dusche, Waschbecken, Boiler inkl. Installation

Abfluss nach außen

 

Symbolfotos

Plan innen ohne Bad
Plan innen mit Bad
Vorderansicht
Seitenansicht
Ihre Formularnachricht wurde erfolgreich versendet.
Sie haben folgende Daten eingegeben:

Kontaktformular

Bitte korrigieren Sie Ihre Eingaben in den folgenden Feldern:
Beim Versenden des Formulars ist ein Fehler aufgetreten. Bitte versuchen Sie es später noch einmal.

Hinweis: Felder, die mit * bezeichnet sind, sind Pflichtfelder.

Sie erreichen uns unter:

Telefon: 0676 9034200

E-Mail:

office@chg-wellness.at

 

Ausstellung:

Niederndorf 21

4713 Gallspach

Druckversion | Sitemap
© CHG e.U.

Anrufen

E-Mail